Cody Qiushi Chen
Home
HCI
Computational Design
Architecture
Resume
Cody Qiushi Chen
Home
HCI
Computational Design
Architecture
Resume
Steps of Growth
All
Vanka's Canvas
Design Build @CMU
Graphic Anatomy
Analog Drawing
Spring Garden Hostel
Destijl Lamp
Social Context
Steps of Growth
Vanka's Canvas
Design Build @CMU
Graphic Anatomy
Analog Drawing
Spring Garden Hostel
Destijl Lamp
Social Context
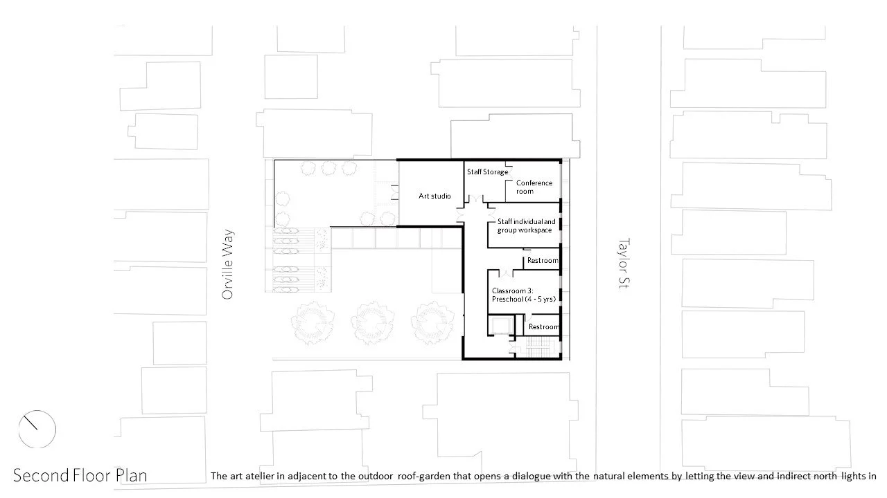
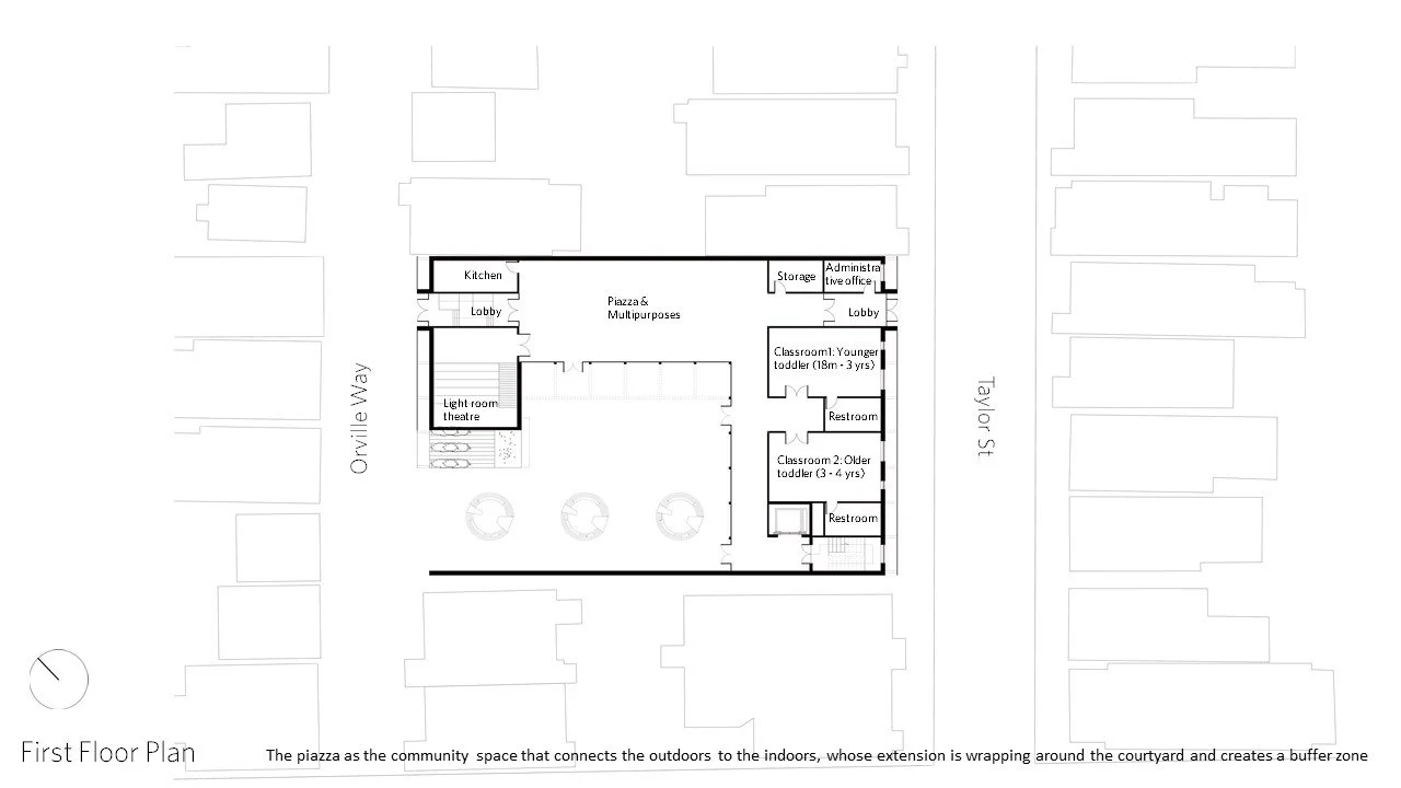
Steps of Growth